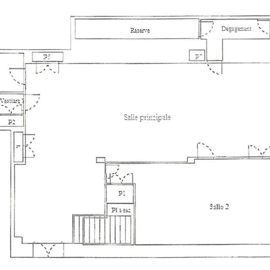
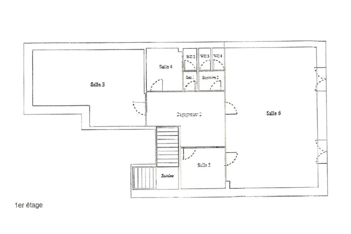
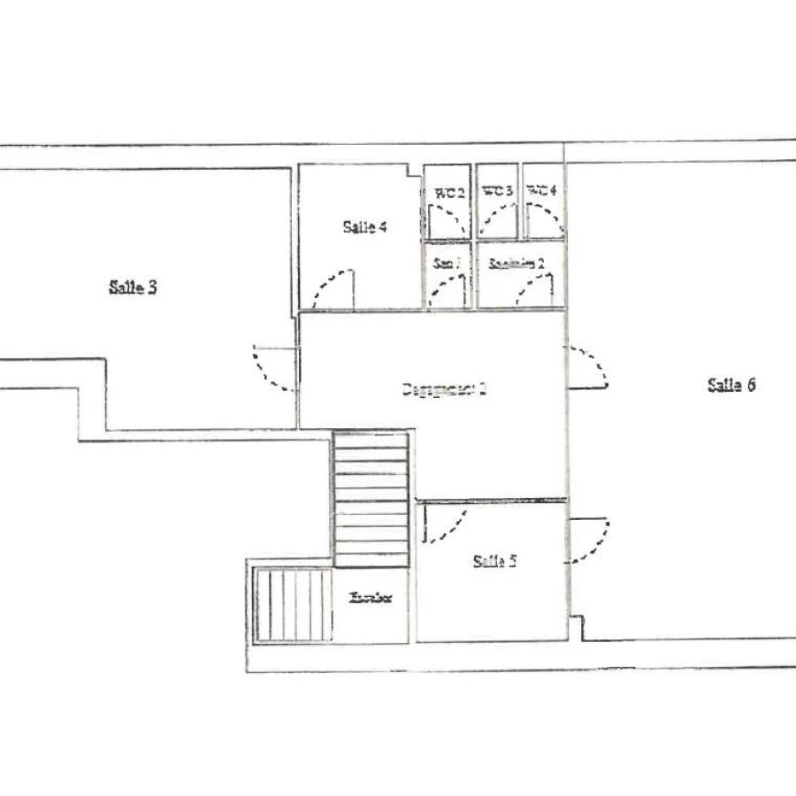
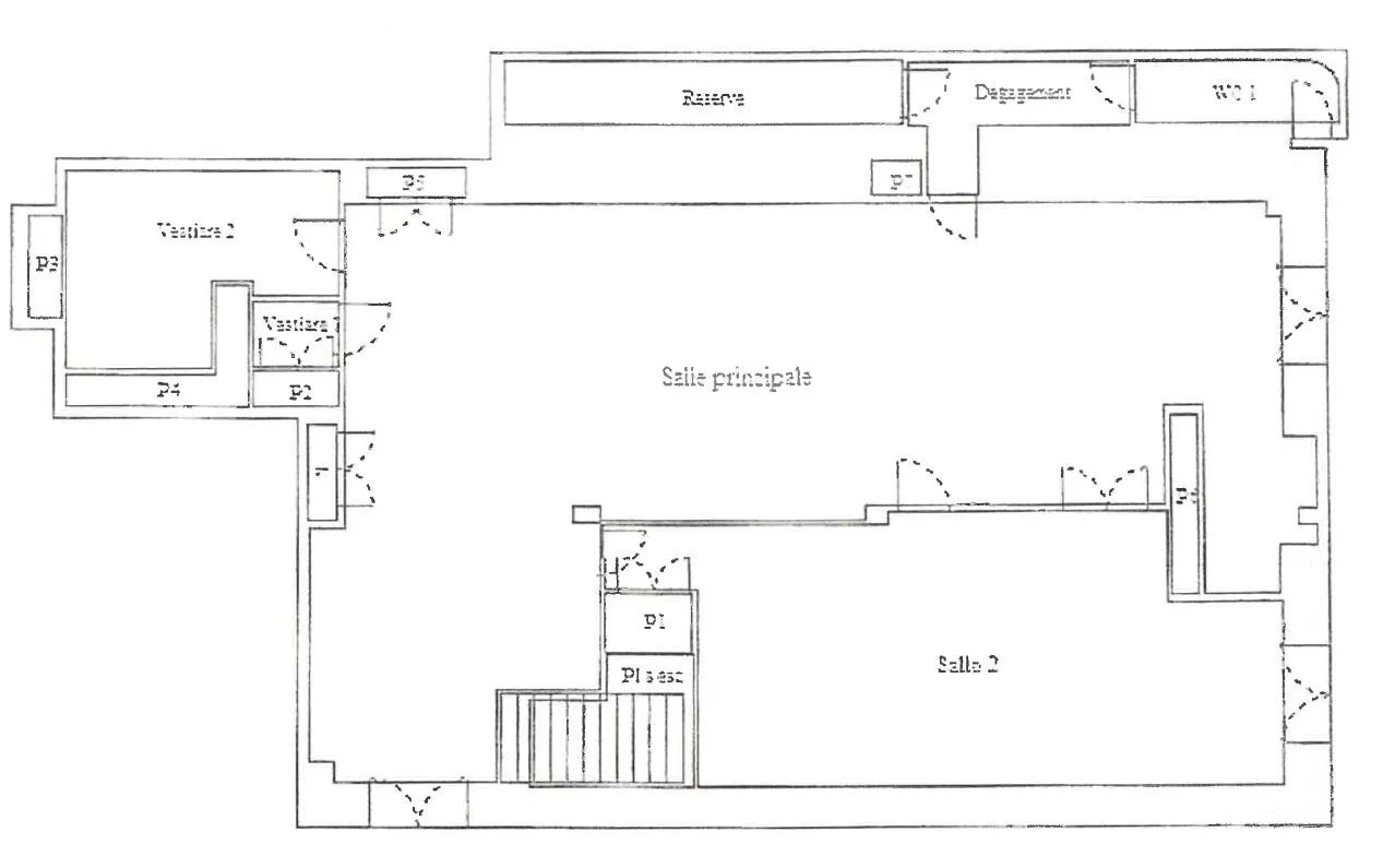
NICE CENTRE CARABACEL vente de bureaux d’une superficie de 280 m² répartis RDC et R+1, dans un immeuble bourgeois de très bon standing au pied du secteur Cimiez. Ces bureaux climatisés et possibilité accès PMR. Autorisation de stationner 5 véhicules dans la copropriété.











